
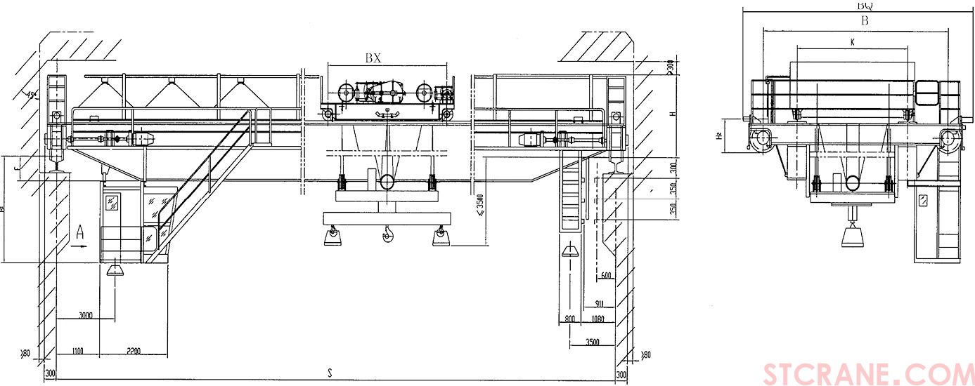
本起重机带有可旋转挂梁,适用于钢厂、船厂、港口、堆场和仓储等室内或露天的固定跨间,装卸及搬运钢板、型钢、盘卷等物料。特别适用于吊运不同规格且需水平旋转的场合。挂梁为十字架结构,可靠及安全性好,具有一定的防摇摆功能。挂梁下可以携带电磁吸盘、夹钳等专用吊具。
注:
1、进入司机室的走台方式为:端入、侧入、顶入;
2、起重量包含挂梁及专用吊具白重;
3、挂梁最大旋转角度为±180°;
4、图示极限位置尺寸S1、S2为挂梁旋转90°后,挂梁中心线距轨道中心线数据;
5、以下所有数据为室内使用时;
6、参数表中起重机总功率为行车本体功率,不含专用吊具功率
Low level slewing overhead crane with carrier-beam
The crane has slewing carrier-beam;is applicable to the fixed span at indoorsor outdoors of steel mill,Shipyard,port,yard and storage,etc.It is used for loading,unloading and carrying steel plate,profile steel,and spool,etc.It is especially applicable to lift material of different specifications and which needs Horizontal rotation.The carrier-beam is cross structure,which is reliable and has good safety features,and Has a certain function of preventing swinging.The lower part of the carrier-beam can bring special lifting appliances,such as magnetic chuck and tongs,etc
Notes:
1.The modes of entering cab:from the end;from the side;from the top;
2.The lifting weigh tincludes deadweight of the carrier-beam and speciallifting appliances;
3.The max.rotating angle ofcarrier-beam is±180。;
4.The sizes of the limiting position Sland S2 in The figureare the data between the center line of carrier-Beam and the center line of the rail after the carrier-beam rotates 90。 ;
5.All below-mentioned data is for being used indoors;
6.The total power of the crane in the parameter list is the power of The travelling crane,but excludes the Power of speciallifting appliances.
