公司介绍
发展历程
企业文化
组织架构
宣传视频
公司动态
行业新闻
常见问题
维护保养
矿山期刊
桥式起重机
门式起重机
欧式起重机
防爆起重机
专用起重机
平车转盘
液压机械
除臭净水
PLC系统
动力电池
工程案例
国内业绩
国外业绩
经典案例
大型项目
捐资助学
社会公益
公益宗旨
信息公开
防伪查询
矿山荣誉
矿山资质
矿山风貌
先进设备
联系我们
销售网络
人才招聘
在线留言
单梁桥式起重机
双梁桥式起重机
洁净空桥式起重机
四主梁旋转桥式起重机
单梁欧式起重机
双梁欧式起重机
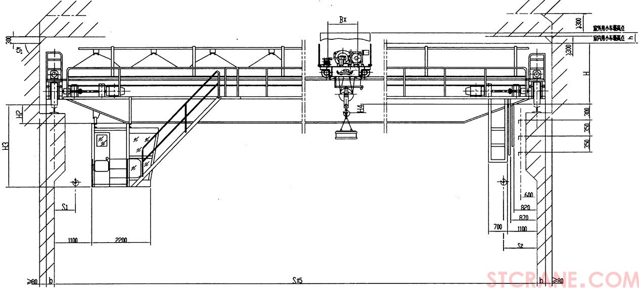
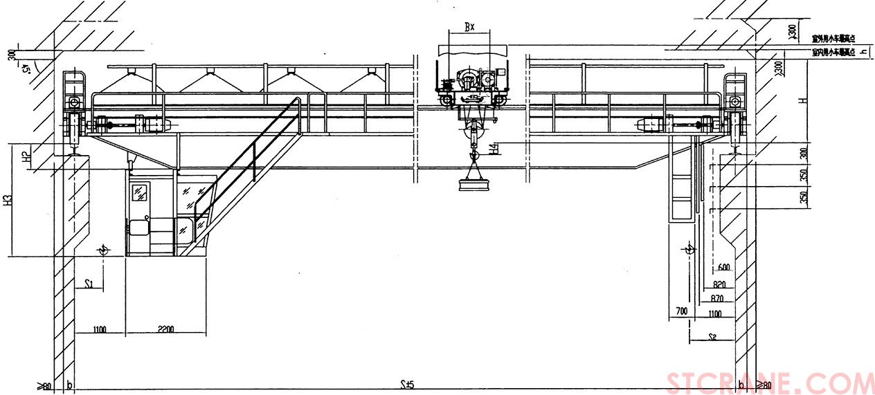
QC型 5~16吨电磁桥式起重机QC type 5~16t Electromagnetic Bridge Crane
QC型 5~16吨电磁桥式起重机