矿山起重—举起未来的力量!
全国咨询热线:021-58726999
当前位置: 首页 > 产品中心 > 专用起重机

挂梁桥式起重机(垂直主梁方向)

(5+5)吨~(20+20)吨挂梁桥式起重机(垂直主梁方向) Overhead crane with craaier-beam(plumbing with the beam)Cap.(5+5)t~(20+20)t

产品介绍

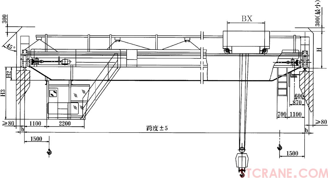
挂梁桥式起重机(垂直主梁方向)(图1)


挂梁桥式起重机(垂直主梁方向)(图2)

(5+5)吨~(20+20)吨挂梁桥式起重机(垂直主梁方向)  
Overhead crane with craaier-beam(plumbing with the beam)Cap.(5+5)t~(20+20)t

挂梁桥式起重机(垂直主梁方向)(图3)

挂梁桥式起重机(垂直主梁方向)(图4)

标签: