


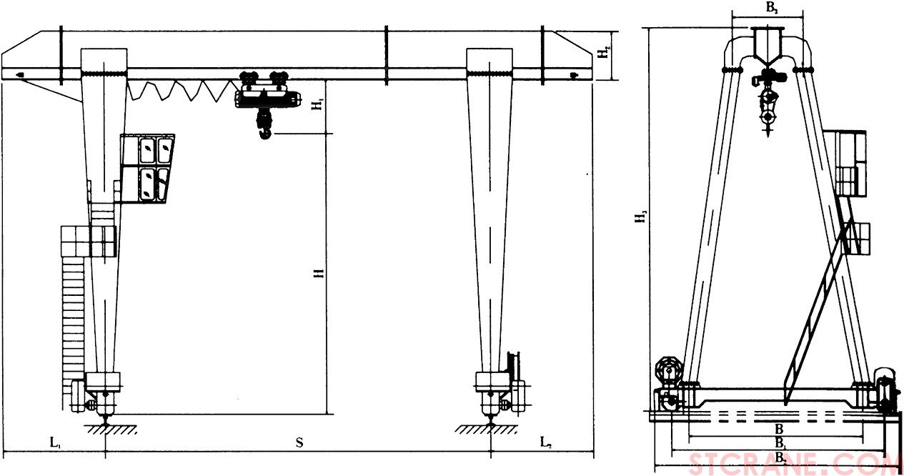
MH型5~20吨电动葫芦门式起重机(桁架式)
MH Type 5~20t Electric Hoist Gantry Crane(Trussed type)
简介 A Brief Introduction
MH型电动葫芦门式起重机与CD、MD等型号的电动葫芦配套使用,是一种有轨运行的中小型起重机,其适用起重量5~20吨,适用跨度12-30米,工作环境-20℃~+40℃内。
本产品为一般用途起重机,多用于露天场所及仓库的装卸或抓取物料,本产品有地面操纵和室内操纵两种型式。
MH Model Electric Hoist Girder Gantry Crane is used together with CD MD Model Electric hoists.It is a track travelling small and medium—sized crane.Its proper Lifting weight is 5 to 20 tons.Proper span is 12 to 30 meters,its proper working temperature is -20℃ to 40℃.
This product is a regular crane widely used at open ground and warehouses to Iqad,unload or grab materials.It has two controlling methods,namely ground controlling and room controlling.
MH型3~20吨电动葫芦门式起重机(箱型式)
MH Type 3~20t Electric Hoist Gantry Crane(Box type)
简介 A Brief Introduction
MH型电动葫芦门式起重机与CD MD等型号的电动葫芦配套使用,是一种有轨运行的中小型起重机,其适用起重量3~20吨,适用跨度12~30米,工作环境-20℃~+40℃内。
本产品为一般用途起重机,多用于露天场所及仓库的装卸或抓取物料,本产品有地面操纵和室内操纵两种型式。
MH Model Electric Hoist Girder Gantry Crane is used together with CD MD Model electrichoists.It is a track travelling small and medium-sized crane.Its proper Lifting weight is 3 to 20tons.Proper span is 12 to 30 meters,its proper working temperature is-20℃ to 40℃.
This product is a regular crane widely used at open ground and warehouses to lqad,unload or grab materials.It has two controlling methods,namely ground,controlling and room controlling.


